top of page
Create Your First Project
Start adding your projects to your portfolio. Click on "Manage Projects" to get started
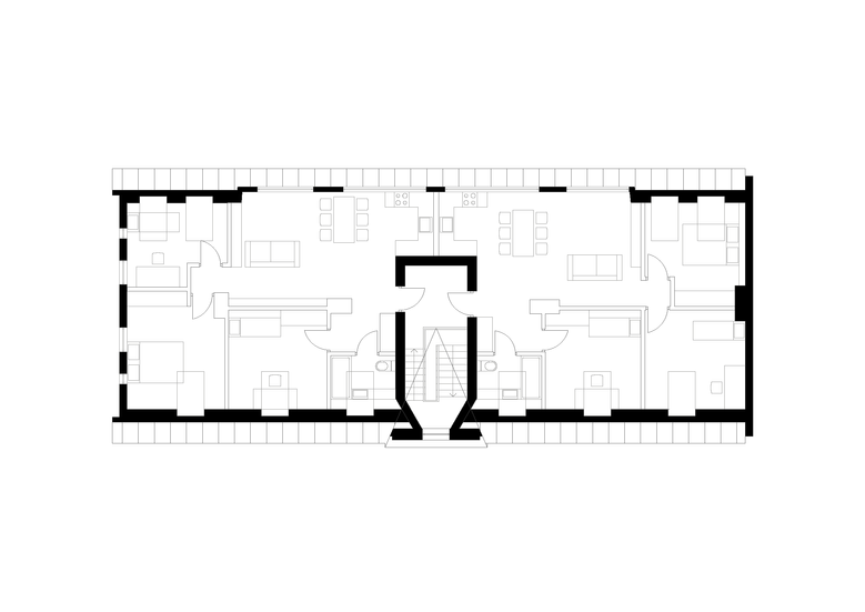
MN14A
Project type
Renovation
Year
2017
Country
Latvia
MN14A is historical building in Agenskalns, a project sketch of low-rase residential building renovation, covering it into a modern apartment house. The renovation includes newly built attic floor, a fully updated facade and a redesigned interior layout. The building retains its original stature while adapting to modern living needs , offering improved functionality and comfort. MN14A is made to be practical multi-family dwelling that preserves the buildings character while enhancing its use and appearance.
bottom of page










